
產品型號:TD/D
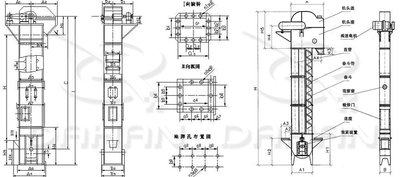
產品簡介:TD/D型斗式提升機適用于垂直輸送粉狀、粒狀、及小塊狀的磨吸性較小的散狀物料,如糧食、煤、水泥、碎礦石等,提升高度高40m。斗式提升機由運行部分,帶有傳動滾筒的上部區段,帶有拉緊滾筒的下部區段,中間機殼,驅動裝置,逆止制動裝置等組成。
咨詢報價銷售熱線:0373-268 2333
TD系列斗式提升機適用于垂直輸送粉狀、粒狀、及小塊狀的磨吸性較小的散狀物料,如糧食、煤、水泥、碎礦石等,提升高度高40m。TD型按JB3926-85《垂直斗式提升機》標準設計制造,目前國內常用的斗式提升機均為垂直式,較新型。TD型斗式提升機備有四種料斗Q型(淺斗)、H型(弧底斗)、ZD型(中深斗)SD型(深斗)。

TD型斗式提升機由運行部分(料斗與牽引膠帶),帶有傳動滾筒的上部區段,帶有拉緊滾筒的下部區段,中間機殼,驅動裝置,逆止制動裝置等組成,適用于向上輸送松散密度ρ<1.5t/m3粉狀、粒狀和小塊狀的無磨琢性和半磨琢性散狀物料,如煤、砂、焦末、水泥、碎礦石等。
TD型斗式提升機結構形式:傳動裝置TD型斗提升機的傳動裝置有兩種形式分別配有YZ型減速器ZQ(或YY)型減速器。YZ型軸減速器直接裝在主軸軸頭上,省去了傳動平臺、聯軸器等,使結構緊湊、重量輕,而且其內部帶有異型輥逆止器,逆止可靠。該減速器噪音低,運轉平穩,并隨主軸浮動,可消除安裝應力。

| 型號 | TD160 | TD250 | TD315 | TD400 | ||||||||||||
| 料斗形式 | h | zD | Sd | |||||||||||||
| 輸送量(m3/h) | 22 | 23 | 35 | |||||||||||||
| 斗寬(mm) | 160 | 250 | 315 | 400 | ||||||||||||
| 斗容(L) | 2.2 | 3.0 | 4.6 | |||||||||||||
| 斗距(mm) | 280 | 350 | 360 | 450 | 400 | 500 | 480 | 560 | ||||||||
| 帶寬(mm) | 200 | 300 | 400 | 500 | ||||||||||||
| 斗速(m/s) | 1.4 | 1.6 | 1.6 | 1.8 | ||||||||||||
| 物料量大塊(mm) | 25 | 35 | 45 | 55 | ||||||||||||
| 型號 | TD500 | TD630 | TD160 | TD250 | TD350 | TD450 | ||||||||||
| 料斗形式 | zD | Sd | Q | Q | ||||||||||||
| 輸送量(m3/h) | 89 | 142 | 4.7 | 50 | ||||||||||||
| 斗寬(mm) | 500 | 630 | 160 | 250 | 350 | 450 | ||||||||||
| 斗容(L) | 14.6 | 23.5 | 0.65 | 14.5 | ||||||||||||
| 斗距(mm) | 500 | 625 | 710 | 300 | 400 | 500 | 640 | |||||||||
| 帶寬(mm) | 600 | 700 | 200 | 300 | 400 | 500 | ||||||||||
| 斗速(m/s) | 1.8 | 2 | 1 | 1.25 | 1.25 | 1.25 | ||||||||||
| 物料量大塊(mm) | 60 | 70 | 25 | 35 | 45 | 55 | ||||||||||


1.驅動功率小,采用流入式喂料、誘導式卸料、大容量的料斗密集型布置.在物料提升時幾乎無回料和挖料現象,因此無效功率少。
2.提升范圍廣,這類提升機對物料的種類、特性要求少,不但能提升一般粉狀、小顆粒狀物料,而且可提升磨琢性較大的物料.密封性好,環境污染少。
3.運行可靠性好,合理的設計原理和加工方法,保證了整機運行的可靠性,無故障時間超過2萬小時。提升高度高.提升機運行平穩,因此可達到較高的提升高度。
4.使用壽命長,提升機的喂料采取流入式,無需用斗挖料,材料之間很少發生擠壓和碰撞現象。本機在設計時保證物料在喂料、卸料時少有撒落,減少了機械磨損。